| NIVEAU | PIÈCE | SURFACE |
- Ref 4600316775
- Ref 3509
- Type Maison
- Ville PRAYSSAC
- Pièces 3
- Chambres 2
- Surface 95 m²
- Terrain 986 m²
- Prix :
249 500 € - Prix :
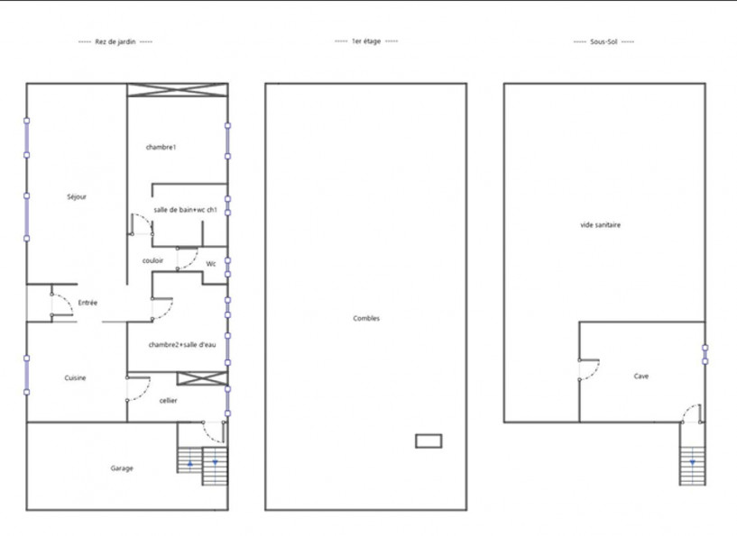
Proche centre Prayssac, très belle maison d'environ 95m² habitables, entièrement rénovée comprenant séjour, cuisine équipée, cellier, dégagement, 2 chambres avec salle d'eau, wc. Garage et cave. Grenier aménageable.
Grandes terrasses.
Chauffage par aérothermie. Tout à l'égout.
Terrain: 986m²Les informations sur les risques auxquels ce bien est exposé sont disponibles sur le site Géorisques
Notre barème d'honoraires
Voir le descriptif des pièces
Contactez
Notre agence
Autour de ce bien :
Découvrez les écoles, hopitaux, commerces ... à proximité
Découvrez
nos biens similaires






































